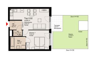
TOP 2.02
TOP 2.02
TOP 2.02
2
-Zimmer Wohnung
43.85 m²
Erdgeschoss
Terrasse, Garten
Preis erfragen
Grundlagen
- Geschoss: Erdgeschoss
- Wohnungsstatus: Vermietet
- Aussenbereich: Terrasse, Garten
- Fläche, m²: 43.85 m²
- Stiege: Spindlerweg 5
- Zimmer insgesamt: 2
- Schlafzimmer: 1
- Zimmeranzahl: 2 Zimmer
- Wohnfläche: 43.85 m²